- トップ
-
物件詳細
品川区南大井五丁目 新築一棟マンション
物件詳細
-
価格
-
525,800,000円(税込)
-
種類
-
新築一棟マンション
-
所在地
-
東京都品川区南大井五丁目23-1 プレアス大森
-
土地面積
-
公簿136.85㎡
実測137.55㎡
-
地目
-
宅地
-
接道状況
-
北側公道幅員約7.88m
-
権利
-
所有権
-
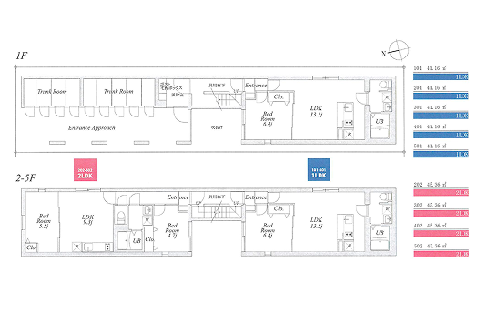
総戸数
-
9戸
-
構造
-
鉄筋コンクリート造地上5階建
-
床延面積
-
422.95㎡
-
築年月
-
令和7年1月末竣工済
-
現況年収
-
22,080,000
-
引渡
-
相談(令和8年6月1日以降)
-
現況
-
現在稼働中
-
備考
-
・4月末に引渡しで進められるなら、値引き検討可能
※買取の場合